2

Wettbewerb Neubau Schule Safenwil

Dorfstrasse Safenwil

Das Areal der bestehenden Schulanlage Safenwil liegt im alten Dorfteil entlang der Kantonsstrasse und umfasst Primar- und Oberstufe. Aufgrund steigender Schülerzahlen und des Ausbaubedarfs der Tagesstrukturen wird ein Neubau benötigt, der zusätzliche Unterrichts-, Verwaltungs- und Gemeinschaftsräume schafft. Dieser soll im nordwestlichen Arealbereich integriert werden und gleichzeitig den Aussenraum neu strukturieren und aufwerten. 

Das neue Gebäude fügt sich sensibel in den bestehenden Schulkomplex ein und respektiert sowohl die vorhandene Bebauungsstruktur als auch den denkmalgeschützten Charakter des alten Schulhauses. Die Dachlandschaft orientiert sich an der Silhouette des Bestands und schafft eine harmonische Beziehung zwischen Alt und Neu. Durch die zurückhaltende Fassadengestaltung und die gewählte Materialisierung ordnet sich der Neubau dem historischen Gebäude unter und bildet einen ruhigen Hintergrund für die Aussenräume.

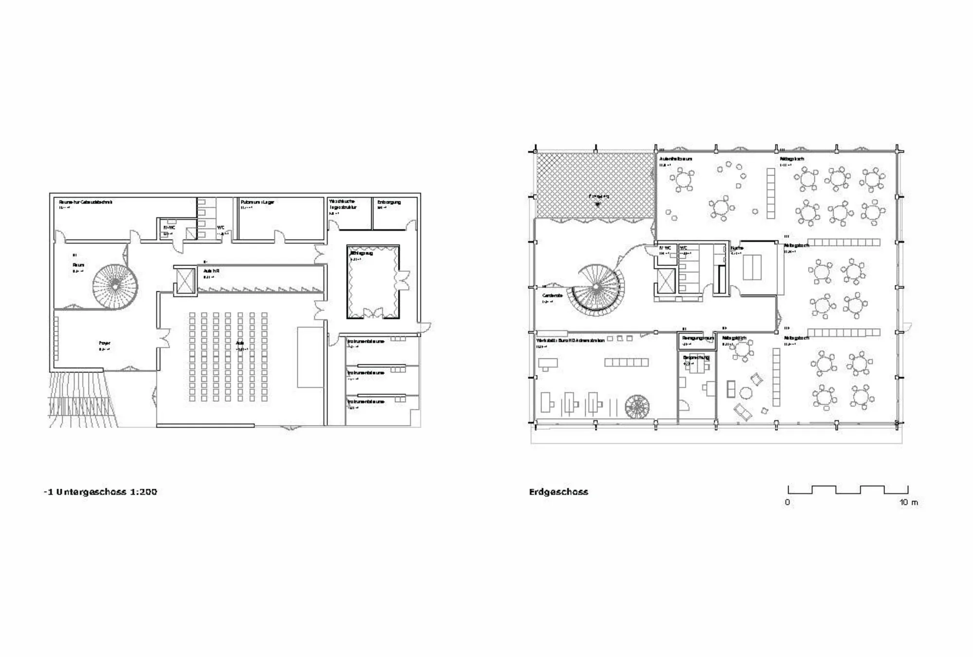
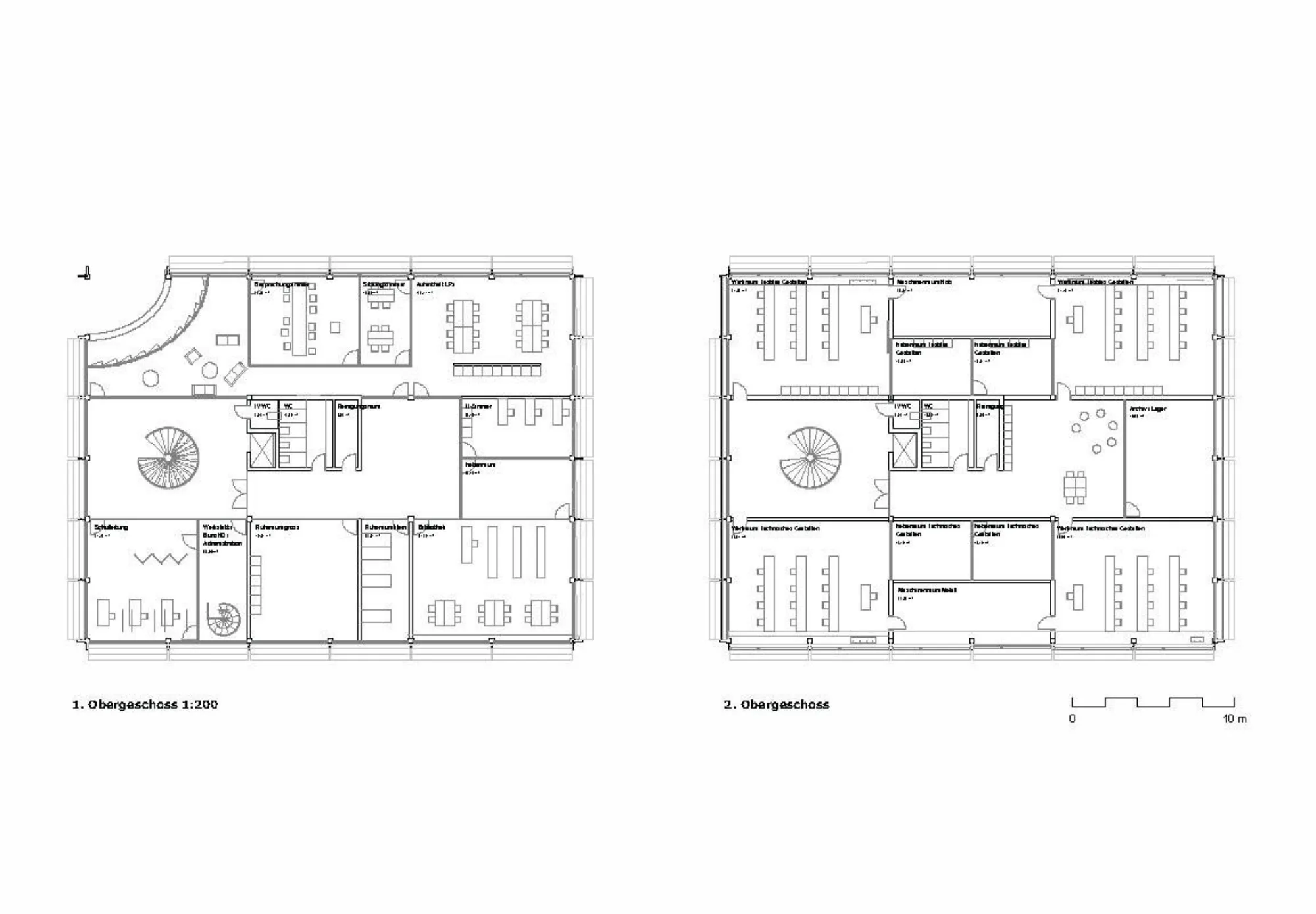
Die Setzung des Baukörpers nutzt die Hanglage des Areals und vermittelt zwischen Strassenniveau und Schulgelände. Dadurch entstehen neue Platzsituationen im Süden und Osten sowie eine direkte Durchwegung durch das Gebäude. Der Bau besteht aus einem massiven Betonsockel, auf dem ein leichter Holzbaukörper mit Verwaltungs-, Unterrichts- und Gemeinschaftsräumen aufliegt. Diese Kombination ermöglicht eine wirtschaftliche und flexible Konstruktion mit hoher räumlicher Anpassungsfähigkeit. Ein orthogonales Stützenraster sorgt für variable Grundrisse, während der Erschliessungskern die notwendige Aussteifung übernimmt.

1

Die innere Organisation folgt einer klaren Raumabfolge. Ein grosszügiger, überdachter Eingang führt in ein Foyer mit Zwischenklima, das als Begegnungs- und Ausstellungsraum genutzt werden kann. Von hier aus erschliesst ein zentraler Kern die Unterrichtsräume, Verwaltungsbereiche und Fachräume. Öffentlich zugängliche Nutzungen wie Musikräume liegen auf Strassenniveau, während Mensa und Aufenthaltsräume im Erdgeschoss direkten Bezug zu den Freiflächen haben. Werkstätten und Fachräume erhalten grössere Raumhöhen und eine grosszügige Belichtung.

Das Freiraumkonzept gliedert die Anlage in unterschiedlich nutzbare Bereiche mit hoher Aufenthaltsqualität und ökologischem Wert. Terrassierte Flächen strukturieren das Gelände und schaffen Räume für Spiel, Aufenthalt und Unterricht im Freien. Der Sportbereich wird neu organisiert und in eine vielseitig nutzbare Freifläche mit Baumpflanzungen und Sitzbereichen integriert. Ein grüner Rahmen aus einheimischen Gehölzen, Stauden und Hecken stärkt die Biodiversität und verbindet das Schulareal mit der umgebenden Landschaft.

Die Konstruktion kombiniert einen langlebigen Betonsockel mit einer nachhaltigen Holzbauweise. Eine Photovoltaikanlage auf dem Dach, robuste Materialien und eine klare Wegeführung tragen zu einem wirtschaftlichen und langfristig flexiblen Schulgebäude bei, das funktionale Anforderungen mit einer ruhigen, ortsverträglichen Architektur verbindet.

3
Übersichtsplan
Umgebungsplan
Grundrisse
Grundrisse 1
Längsschnitt 1
Längsschnitt 2
Fassade Ost und Süd
Fassade Nord und West